Diaporama
Diaporama
Nouvelle recherche Cette annonce m'intéresse

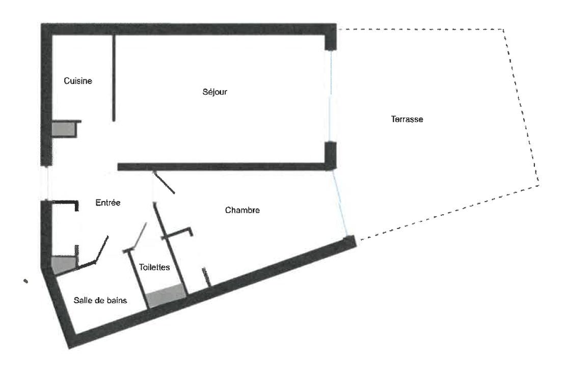
Appartement T2 avec grande terrasse – À 300 m de la gare d’Escoublac

Prix : 249 900,00 
Dont honoraires 11 900,00 € TTC inclus (5,00 %) à la charge de l'acquéreur, soit 238 000 € hors honoraires.
Type de bien : Appartement
Pièces : 2 pièces / 1 chambre
Surface : 42,86m²
Localité : La Baule-Escoublac (44500)
Référence : 49114-769

Performance énergétique

logement extrêmement consommateur d’énergie logement très performant passoire énergétique kg CO /m².an ² consommation (énergie primaire) émissions kWh/m².an 180 5 *
5 kg CO /m².an ² * Dont émissions de gazà effet de serre peu d’émissions de CO émissions de COtrès importantes ² ²

Montant des dépenses théoriques annuelles d’énergie

Coût annuel (min) : 690.00 €
Coût annuel (max) : 990.00 €
Année de référence : 2023

Caractéristiques

Nombre d'étages : 4
État général : Bon
Situation locative : libre
Cuisine : oui
Nombre de salles de bain : 1
Terrasse : oui
Parking : oui

Commodités

Cave : oui

Mandat

Téléphone mandataire : +33631733350
E-mail mandataire : Veuillez utiliser le formulaire de contact ci-dessous ...
Négociateur : Laurie JOUSSET

Cette annonce m'intéresse

Captcha
* Les champs suivis d'un astérisque sont obligatoires.

Le renseignement des informations marquées d’un astérisque est obligatoire pour permettre le traitement de votre demande. Les autres champs, non obligatoires, ont pour seul objectif de préciser vos réponses. L’Office ci-après « Responsable de traitement », traite des données personnelles vous concernant pour le traitement de votre demande dans le cadre du formulaire de contact renseigné ci-dessus. Ce traitement est fondé sur l’intérêt légitime poursuivi par le responsable du traitement. Les données vous concernant sont conservées pour une durée n’excédant pas le traitement de votre demande. Vos données sont susceptibles de faire l’objet d’un transfert de données personnelles dans les pays dont le niveau de protection n’est pas reconnu comme équivalent par la Commission européenne. En absence de décision d’adéquation, ce transfert est encadré par des garanties adaptées ou approuvées par la Commission Européenne. Conformément à la réglementation, vous pouvez accéder aux données vous concernant. Le cas échéant, vous pouvez demander la rectification ou l’effacement de celles-ci, obtenir la limitation du traitement de ces données ou vous y opposer pour des raisons tenant à votre situation particulière. Ces droits peuvent être exercés directement auprès du Responsable de traitement ou de son Délégué à la protection des données à l’adresse suivante : cil@notaires.fr Si vous pensez, après nous avoir contactés, que vos droits ne sont pas respectés, vous pouvez introduire une réclamation auprès d’une autorité européenne de contrôle : la Commission Nationale de l’Informatique et des Libertés pour la France.
Pour plus d'information, veuillez consulter notre page d'informations relatives à la protection des données personnelles.
Septeo Digital & Services © 2025
Navigateur non pris en charge

Le navigateur Internet Explorer que vous utilisez actuellement ne permet pas d'afficher ce site web correctement.

Nous vous conseillons de télécharger et d'utiliser un navigateur plus récent et sûr tel que Google Chrome, Microsoft Edge, Mozilla Firefox, ou Safari (pour Mac) par exemple.
OK